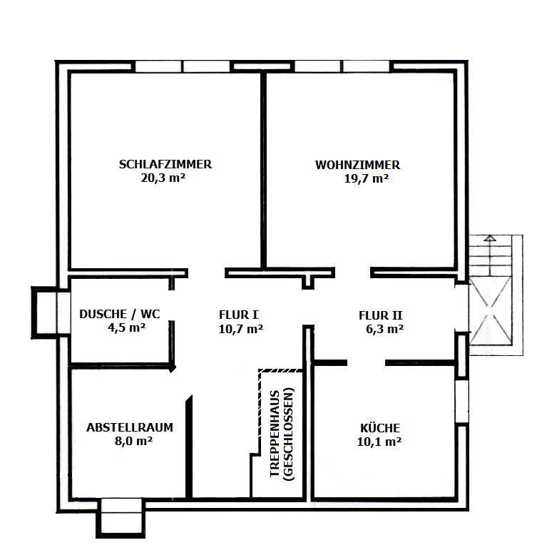
Eure Meinung: 2,5- oder 3-Zimmerwohnung?
|
Seite 1 von 1
neuester Beitrag: 28.12.09 23:56
|
||||
| eröffnet am: | 28.12.09 23:36 von: | mvbraun | Anzahl Beiträge: | 4 |
| neuester Beitrag: | 28.12.09 23:56 von: | Thomastradamus | Leser gesamt: | 2712 |
| davon Heute: | 1 | |||
| bewertet mit 0 Sternen |
||||
|
|
||||






